Blue Ridge Mountains Real Estate & North Georgia - 706.835.5585

MLS # 417462
951 Longbranch,
Ranger
Residential
$298,840
2 2 2.16 Acres+/-

Property Details
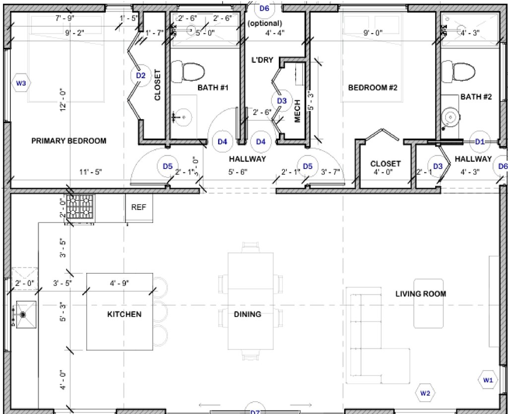
Under Construction! Nestled in the serene, gated community of Talking Rock Creek Resort, this contemporary ranch-style home is the perfect blend of modern design and natural beauty. Set on a combined 2.16-acre lot (including 933 Apex), this peaceful property offers the ideal escape for full-time living or a weekend getaway. Designed with light and space in mind, the home features an abundance of windows that flood the interior with natural light and frame stunning views of the surrounding landscape. The open-concept living area provides a spacious, inviting atmosphere for relaxing or entertaining. This thoughtfully designed home includes two bedrooms and two full baths, providing comfort and privacy. At the back of the property, a charming 3-foot-wide creek adds to the tranquility, making it a perfect spot to unwind and enjoy nature. Whether you're looking for a modern mountain retreat or a quiet place to call home, this under-construction gem offers both comfort and connection to the great outdoors. Don't miss the opportunity to make it your own!
Listing Information
List Price:
$298,840
MLS #:
417462
Property Type:
Residential
Style:
Contemporary
Bedrooms:
2
Bathrooms:
2
Acreage:
2.16+/-
View:
Status:
Pending
Interior Features
Total Bedrooms:
2
Main Floor Beds:
2
Upper Floor Beds:
0
Lower Floor Beds:
0
Baths:
2
Interior
Ceiling Fan(s)
Heating:
Electric
Floors:
Luxury Vinyl
Windows:
Insulated Windows
Appliances:
Range,Microwave,Dishwasher
Laundry:
Main Level
Exterior Features
Style:
Contemporary
Acreage:
2.16
Frontage:
Road
Road:
Paved
Driveway:
Road
Construction:
Frame
Roof:
Shingle
Year Built:
2025
Water:
Public
Sewer:
Septic Tank
Other Information
Address:
951 Longbranch
County:
Ar 2 Other County GA
City
Ranger
State:
GA
Zip Code:
30734
Status:
Pending
Foreclosure:
0
Contact North Georgia Cabins and Land
Susan Phillips
Phone:
706.835.5585
877.545.4168
Email:
Address:
44 Boardtown Road
Blue Ridge, GA 30513
Contact Form
Share this listing!
Facebook ShareTwitter ShareGoogle ShareLinked In Share
, Ranger GA 30734

Mortgage Payment Calculator


Please do not use commas. The accuracy and applicability of the calculator below are not guaranteed.
Interest Rate:
Loan Amount:
Loan Term (in years):
Annual Taxes:
Annual Insurance:

Below is Your Monthly Payment

Principal & Interest:
Tax:
Insurance:
Total Monthly Payment:
MLS/IDX data provided by the Northeast Georgia Board of Realtors
Listing provided through broker reciprocity by Atlanta Communities - Woodstock
Property information deemed reliable but not guaranteed and should be verified.
Blue Ridge Real Estate
Phone: 706.835.5585
Toll Free: 877.545.4168

44 Boardtown Road
Blue Ridge, GA 30513
© Copyright 2025 Mark Burger
Website Designed by Tampa Bay Web Design